9 000 000 Р 110 600 $ или 95 070

Информация о квартире

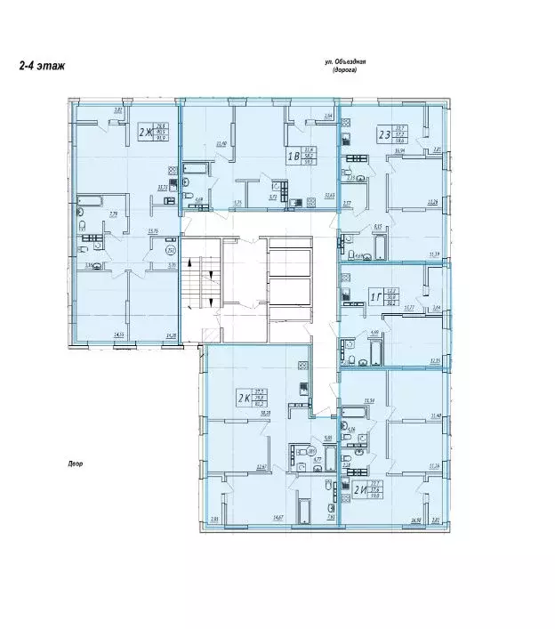
60 м2
Площадь
2
Комнаты
3
Этаж
13
Этажность
Развернуть
Агент
+7 (994) 509-49-60
Начать чат с агентом

2-к кв. Ханты-Мансийский АО, Ханты-Мансийск ул. Объездная, 57 (60.0 м)

Продаётся 2-комнатная квартира в строящемся доме (Дом 1), срок сдачи: IV-кв. 2025, общей площадью 60 кв.м., на 3 этаже. Ставка 6 на ВЕСЬ срок. БЕЗ УДОРОЖАНИЯКвартал на Объездной— презентабельный жилой комплекс комфорт класса с современными решениями по благоустройству территории.Жилой дом представляет собой 2-секционное здание с заполнением каркаса керамзитоблоками. Дом переменной этажности 9 и 13 этажей.Квартира сдается в предчистовой отделке, при этом есть возможность заказать качественный ремонт от застройщика.На первом этаже предусмотрены коммерческие площади, а на цокольном — кладовые.Подъезды готовятся в дизайнерскую современную отделку, а также учтены колясочные. Придомовая территория включает в себя двор без машин, при этом парковочные места вынесены за периметр двора, детские площадки огорожены, а территория озеленена.Комплекс находится на первой линии развитого района Гидронамыв.Дом соседствует с ДС Сказка , а также с тремя школами. Полностью благоустроенный район с обеспечением инфраструктуры под любые потребности.Сдача дома — Декабрь 2025г.Запишитесь на показ с менеджером. Он подберет подходящую квартиру и поможет подать заявку на ипотеку без первого взноса без посещения офиса.

Читать полностью
    Позвонить Написать
    9 000 000 Р110 600 $ или 95 070
    Агент
    +7 (994) 509-49-60
    Начать чат с агентом
    Похожие предложения
    2-к кв. Ханты-Мансийский АО, Ханты-Мансийск ул. Объездная, 57 (59.9 м) - Фото 1
    2-к кв. Ханты-Мансийский АО, Ханты-Мансийск ул. Объездная, 57 (59.9 м) - Фото 2
    2-комнатная квартира, общая площадь 59м²

    ЖК Квартал на Объездной дом 1 - это многоквартирный жилой комплекс, который представляет собой 9 и 13 этажей, 2 подъезда и 122 квартиры. Конструктив - монолитный каркас с заполнением керамзитовыми блоками. Проектом предусмотрены наличие коммерческих...
    • 59 м²
    • 2-ком
    • 2/9 эт.
    8 985 000 Р
    Агент
    +7 (994) Показать номер
    Посмотреть контакты
    2-к кв. Ханты-Мансийский АО, Ханты-Мансийск ул. Объездная, 57 (60.4 м) - Фото 1
    2-к кв. Ханты-Мансийский АО, Ханты-Мансийск ул. Объездная, 57 (60.4 м) - Фото 2
    2-комнатная квартира, общая площадь 60м²

    ЖК Квартал на Объездной дом 1 - это многоквартирный жилой комплекс. Представляет собой 9 и 13 этажей. Всего 2 подъезда и 122 квартиры. Конструктив жилового дома- монолитный каркас с заполнением керамзитовыми блоками. Проектом предусмотрены наличие...
    • 60 м²
    • 2-ком
    • 2/9 эт.
    9 060 000 Р
    Агент
    +7 (994) Показать номер
    Посмотреть контакты
    2-к кв. Ханты-Мансийский АО, Ханты-Мансийск ул. Объездная, 57 (60.0 м) - Фото 1
    2-к кв. Ханты-Мансийский АО, Ханты-Мансийск ул. Объездная, 57 (60.0 м) - Фото 2
    2-комнатная квартира, общая площадь 60м²

    2 комнатная в ЖК Квартал на Объездной дом 1 - это многоквартирный жилой комплекс, который представляет собой 9 и 13 этажей, 2 подъезда и 122 квартиры. Конструктив - монолитный каркас с заполнением керамзитовыми блоками.Проектом предусмотрены наличие...
    • 60 м²
    • 2-ком
    • 2/13 эт.
    9 000 000 Р
    Агент
    +7 (994) Показать номер
    Посмотреть контакты
    3-к кв. Ханты-Мансийский АО, Ханты-Мансийск Березовская ул., 53 (81.7 ... - Фото 1
    3-к кв. Ханты-Мансийский АО, Ханты-Мансийск Березовская ул., 53 (81.7 ... - Фото 2
    3-комнатная квартира, общая площадь 81м²

    Продаётся 3-комнатная квартира в сданном доме (Берёзовская, 53), срок сдачи: IV-кв. 2024, общей площадью 81.7 кв.м., на 3 этаже. Открыты продажи квартир в НОВОМ ДОМЕ на Березовская 53.Срок сдачи дома: декабрь 2024 года.Предлагаем Вашему вниманию 3-х комнатную...
    • 81 м²
    • 3-ком
    • 3/5 эт.
    • кирпичный
    9 000 000 Р
    Агент
    +7 (985) Показать номер
    Посмотреть контакты
    3-к кв. Ханты-Мансийский АО, Ханты-Мансийск Березовская ул., 53 (81.7 ... - Фото 1
    3-к кв. Ханты-Мансийский АО, Ханты-Мансийск Березовская ул., 53 (81.7 ... - Фото 2
    3-комнатная квартира, общая площадь 81м²

    Продаётся 3-комнатная квартира в сданном доме (Берёзовская, 53), срок сдачи: IV-кв. 2024, общей площадью 81.7 кв.м., на 2 этаже. Открыты продажи квартир в НОВОМ ДОМЕ на Березовская 53.Срок сдачи дома: декабрь 2024 года.Предлагаем Вашему вниманию 3-х комнатную...
    • 81 м²
    • 3-ком
    • 2/5 эт.
    • кирпичный
    9 000 000 Р
    Агент
    +7 (985) Показать номер
    Посмотреть контакты

    Не нашли подходящего объявления?

    Оставьте заявку, и наши риэлторы подберут квартиру в новостройке в районе Ханты-Мансийска

    (0)