64 140 Р 843 $ или 723

Информация об помещении

2
Этаж

Состояние и оснащение

Количество этажей
2
Развернуть
Агент
+7 (912) 414-21-84
Начать чат с агентом

Помещение свободного назначения в Ханты-Мансийский АО, Ханты-Мансийск ...

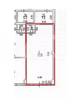
Арт.Предлагаем в аренду офисные помещения в новом современном здании.Доступны три офисных блока:1: 42,76 м (на фото)2: 42,95 м3: 29,48 мУсловия и инфраструктура:Цена: 1500 /м в месяц, включая обслуживание и коммунальные услуги.Закрытая парковка с пропускной системой (шлагбаум).Современные холлы, безбарьерный доступ.Новый ремонт: стены под покраску, пол — линолеум, натяжные потолки. В помещении 2: мансардный потолок с подвесными светильниками.3 санузла в местах общего пользования.Возможность подключить оптоволокно.Назначение:Под любые виды деятельности, не требующие мокрой зоны; особенно подходит для стильного, современного офиса.

Читать полностью
    Позвонить Написать
    64 140 Р843 $ или 723
    Агент
    +7 (912) 414-21-84
    Начать чат с агентом
    Похожие предложения
    Помещение свободного назначения в Башкортостан, Стерлитамак просп. ... - Фото 1
    Помещение свободного назначения в Башкортостан, Стерлитамак просп. ... - Фото 2
    Cдается помещение, на красной линии, с большим пешеходным и автомобильным трафиком. Остановка непед входом. Доступ в помещение круглосуточный, 24/7. Отдельная, красивая входная группа. Есть место для вывески. Парковка для машин. В помещении есть вода,...
    • 1/9 эт.
    65 000 Р
    Агент
    +7 (987) Показать номер
    Посмотреть контакты
    Помещение свободного назначения в Краснодарский край, Новороссийск ... - Фото 1
    Помещение свободного назначения в Краснодарский край, Новороссийск ... - Фото 2
    Сдаю нежилое помещение первый этаж 86 м в ЖК КрасинаОт Собственника. Без комиссии- Расположение: Приморский район, ЖК Красина, активный пеший трафик- Преимущества: первый этаж, витражное остекление, свободной планировки- Характеристики: высота потолка...
    • 1/12 эт.
    65 000 Р
    Агент
    +7 (918) Показать номер
    Посмотреть контакты
    Помещение свободного назначения в Краснодарский край, Новороссийск ул. ... - Фото 1
    Помещение свободного назначения в Краснодарский край, Новороссийск ул. ... - Фото 2
    Сдаю помещение свободного назначения 48 м 1 этаж, 1 линия в центре городаОт Собственника. Без комиссии- Локация: Центр города, первая линия, интенсивный автомобильный и пеший трафик, рядом первая городская больница, роддом, остановки общественного транспорта,...
    • 1/5 эт.
    65 000 Р
    Агент
    +7 (918) Показать номер
    Посмотреть контакты
    Помещение свободного назначения в Краснодарский край, Краснодар ул. ... - Фото 1
    Помещение свободного назначения в Краснодарский край, Краснодар ул. ... - Фото 2
    Сдаю помещение свободного назначения общей площадью 42 мОт Собственника. Без комиссии -Прикубанский округ- Район Панорама (парка Галицкого)- Первый этаж- Электричество: 40 кВт (3 фазы)- Есть возможность увеличить площадь до 115 м, с выходом на две стороны-...
    • 1/18 эт.
    63 000 Р
    Агент
    +7 (918) Показать номер
    Посмотреть контакты
    Помещение свободного назначения в Краснодарский край, Краснодар 1 Мая ... - Фото 1
    Помещение свободного назначения в Краснодарский край, Краснодар 1 Мая ... - Фото 2
    Сдаю помещение 1 этаж, 55 м, 1-ая линия с высоким трафиком с ремонтом под любой вид деятельностиОт Собственника. Без комиссии- Расположение: Прикубанский округ, первая линия, высокий пешеходный трафик, густонаселенный жилой район, рядом общественная остановка...
    • 1/1 эт.
    65 000 Р
    Агент
    +7 (918) Показать номер
    Посмотреть контакты

    Не нашли подходящего объявления?

    Оставьте заявку, и наши риэлторы подберут псн в районе Ханты-Мансийска

    (0)