5 300 000 Р 63 860 $ или 54 730

Информация о квартире

62 м2
Площадь
41 м2
Жилая
4 м2
Кухня
4
Комнаты
3
Этаж
5
Этажность

Дополнительная информация

Тип дома
панельный
Развернуть
Агент
911
+7 (982) 500-03-43
Начать чат с агентом

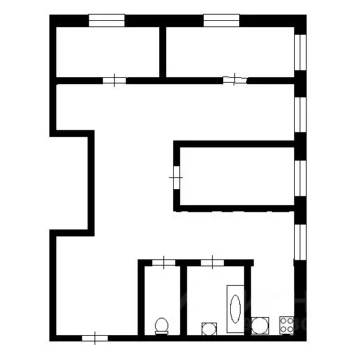
4-к кв. Ханты-Мансийский АО, Нижневартовск ул. Нефтяников, 1 (62.9 м)

Продается отличная 4-комнатная квартира с просторной кухней-гостиной и тремя спальнями, расположенная во 2-микрорайоне города по ул. Нефтяников д.1, на третьем этаже.Удобная планировка:- кухня-гостиная -17.3 кв. М., с двумя окнами.- три отдельных комнаты: 7,4 кв. М., 9.,9 кв. М., 11,5 кв. М. С балконом -2,8 кв. М.- вместительный коридор — 12,1 кв. М.- раздельный санузел: ванная -3 кв. М. И туалетная комната — 1,2 кв. М.Окна квартиры выходят на разные стороны дома (расположение угловое), что обеспечивает дополнительный воздухообмен, наличие солнечных лучей на восходе и закате, а так же, доступ за придомовой территорий.Квартира чистая, теплая, светлая, просторная, уютная, в хорошем жилом состоянии: выровнены полы и стены, установлены пластиковые окна (в том числе, на балконе), натяжной потолок Черутти , межкомнатные двери-натуральное дерево, входная металлическая дверь. В ванной и туалетной комнате- кафель на стенах и на полу. Во всех комнатах качественные обои и линолеум.В квартире новая электрика, сантехника, щитовая.Квартира укомплектована мебелью и техникой, которая, по согласованию с продавцом, останется покупателю:-в кухне: встроенный кухонный гарнитур с вытяжкой, духовым шкафом, варочной панелью, посудомоечной машиной, холодильник, микроволновая печь;- в гостиной: встроенный камин, стол, стулья, диван, тумба под телевизор, телевизор;- в коридоре: встроенный шкаф-купе с зеркалами, настенное зеркало, вешалка для верхней одежды, тумба под обувь, видеодомофон;- в спальне: кровать, письменный стол, компьютерный стол, зеркало, навесные полки, платяной шкаф;- в детской комнате для девочки: угловой письменный стол-тумба, шкаф, кровать, зеркало, навесной шкаф с открытыми полками;- в детской комнате для мальчика: встроенный шкаф-купе с зеркалами, кровать, навесной шкаф с открытыми полками;- в ванной комнате: стиральная машина, настенный шкаф с зеркалом и открытыми полками;В доме — ухоженный, чистый подъезд и придомовая территория, современная детская и спортивная площадка.В шаговой доступности расположены объекты социального и бытового значения: Детский сад Жар-птица , Средняя школа 2, Центральный рынок, Парк Победы, торговые точки, аптеки, стоматологии, салоны красоты и мн. Др.Удобная транспортная развязка, дом расположен на стыке улиц: Омская — Маршала Жукова — Нефтяников. Северная. Рядом с домом остановка общественного транспорта Пионерская .Один собственник, без обременений банка.Ждем вас на просмотр, уважаемый Покупатель Номер объекта: 5/538138/20390

Читать полностью

    Для того, чтобы купить четырехкомнатную квартиру по адресу: Нижневартовск, ул. Нефтяников, 1, позвоните по телефону +7 (982) 500-03-43. Торопитесь! Объявление №30090317681 о продаже четырехкомнатной квартиры опубликовано 2 дня назад.

    Позвонить Написать
    5 300 000 Р63 860 $ или 54 730
    Агент
    911
    +7 (982) 500-03-43
    Начать чат с агентом
    Похожие предложения
    2-к кв. Ханты-Мансийский АО, Нижневартовск ул. 60 лет Октября, 29 ... - Фото 1
    2-к кв. Ханты-Мансийский АО, Нижневартовск ул. 60 лет Октября, 29 ... - Фото 2
    2-комнатная квартира, общая площадь 59м², жилая 32м², кухня 12м²

    Арт.Вашему вниманию предоставляется уютная двухкомнатная квартира в новoм, совpеменнoм paйoнe гopода, котopый рaдуeт житeлей paзвитой инфрacтpуктуpoй В шaговoй доступности нахoдятcя школа и детский сад, чтo дeлaeт этo предлoжeние идeaльным для сeмей...
    • 59 м²
    • 2-ком
    • 2/8 эт.
    • панельный
    5 300 000 Р
    Агент
    +7 (982) Показать номер
    Посмотреть контакты
    2-к кв. Ханты-Мансийский АО, Нижневартовск ул. Мира, 60к3 (57.6 м) - Фото 1
    2-к кв. Ханты-Мансийский АО, Нижневартовск ул. Мира, 60к3 (57.6 м) - Фото 2
    2-комнатная квартира, общая площадь 57м², жилая 33м², кухня 10м²

    Арт.Продается квартира двухкомнатная большая проекта МСК в центре города При продаже остается вся мебель и бытовая техника: кухонный гарнитур, варочная панель, духовой шкаф, посудомоечная машина, два телевизора,стол, стулья, кровать, встроенный шкаф...
    • 57 м²
    • 2-ком
    • 9/16 эт.
    • панельный
    5 200 000 Р
    Агент
    +7 (982) Показать номер
    Посмотреть контакты
    4-к кв. Ханты-Мансийский АО, Нижневартовск ул. Ленина, 13 (78.0 м) - Фото 1
    4-к кв. Ханты-Мансийский АО, Нижневартовск ул. Ленина, 13 (78.0 м) - Фото 2
    4-комнатная квартира, общая площадь 78м², жилая 55м², кухня 6м²

    В связи с переездом, продаётся хорошая, светлая 4-комнатная квартира, улучшенной планировки площадью 78 м2, (узаконенная перепланировка) с просторной кухней - гостиной 26 м2 ,комнатами 13, 14, 10.5 м2, полностью готовая к проживанию, на 5 этаже,...
    • 78 м²
    • 4-ком
    • 5/5 эт.
    • панельный
    5 400 000 Р
    Агент
    +7 (982) Показать номер
    Посмотреть контакты
    3-к кв. Ханты-Мансийский АО, Нижневартовск Интернациональная ул., 49к2 ... - Фото 1
    3-к кв. Ханты-Мансийский АО, Нижневартовск Интернациональная ул., 49к2 ... - Фото 2
    3-комнатная квартира, общая площадь 74м², жилая 50м², кухня 10м²

    id:260. Предлагаем Вашему вниманию уютную 3х комнатную квартиру. В квартире сделан капитальный ремонт, частично остается мебель и техника.
    • 74 м²
    • 3-ком
    • 15/16 эт.
    • панельный
    5 200 000 Р
    Агент
    +7 (982) Показать номер
    Посмотреть контакты
    1-к кв. Ханты-Мансийский АО, Сургут Контейнерная ул. (41.2 м) - Фото 1
    1-к кв. Ханты-Мансийский АО, Сургут Контейнерная ул. (41.2 м) - Фото 2
    1-комнатная квартира, общая площадь 41м², жилая 18м², кухня 10м²

    Продается уютная однокомнатная квартира в Сургуте на Контейнерной улице. Общая площадь квартиры составляет 36.7 кв. м, из них жилая площадь — 18 кв. м, а кухня — 10 кв. м. Квартира расположена на 3-м этаже 5-этажного дома. Высота потолков — 2.8 метра,...
    • 41 м²
    • 1-ком
    • 3/5 эт.
    5 200 000 Р
    Агент
    +7 (982) Показать номер
    Посмотреть контакты

    Не нашли подходящего объявления?

    Оставьте заявку, и наши риэлторы подберут квартиру в районе Нижневартовска

    (0)