35 000 000 Р 454 700 $ или 389 300

Информация об помещении

1
Этаж

Состояние и оснащение

Количество этажей
2
Развернуть
Агент
+7 (912) 080-89-92
Начать чат с агентом

Помещение свободного назначения в Ханты-Мансийский АО, Сургут ул. ...

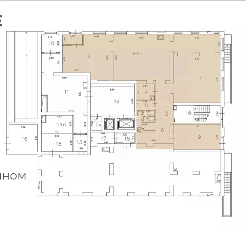
Продается уникальное отдельно стоящее здание с общей площадью 495,9 м, идеально подходящее для ведения бизнеса Находясь в сердце центрального района города, это помещение станет отличным выбором для вашего успешного предприятия. Здание состоит из трех этажей: цокольный этаж площадью 159,5 м, первый этаж — 182,4 м и второй этаж — 157 м. В настоящее время здесь функционирует ресторан с тремя просторными обеденными залами, современными кухонными зонами и удобными подсобными помещениями. Однако возможности использования этого объекта безграничны Вы можете легко адаптировать пространство под свои нужды, объединяя площади для создания торговых залов или организуя кабинетную планировку для офисного использования. Расположение на первой линии в густонаселенном спальном районе гарантирует постоянный поток клиентов, что особенно важно для розничной торговли, продажи товаров первой необходимости, канцелярских принадлежностей или организации салона красоты. Все коммуникации централизованные, а оплата производится по прямым договорам с ресурсоснабжающими организациями, что обеспечивает удобство в эксплуатации. Здание располагается на собственном земельном участке и имеет огороженную парковку с шлагбаумом, что создаст комфортные условия для ваших клиентов и сотрудников. Документы полностью оформлены и готовы к продаже, что позволит вам быстро и без лишних хлопот начать свой бизнес. Не упустите шанс стать владельцем этого привлекательного объекта Показ возможен по предварительной записи. Звоните прямо сейчас и узнайте больше о вашем будущем бизнесе Код пользователя: 17965Номер в базе: 2023412

Читать полностью
    Позвонить Написать
    35 000 000 Р454 700 $ или 389 300
    Агент
    +7 (912) 080-89-92
    Начать чат с агентом
    Похожие предложения
    Помещение свободного назначения в Ханты-Мансийский АО, Сургут просп. ... - Фото 1
    Продажа от Собственника Самый Центр Города1 линия1-2 этаж1 этаж-107 м22 этаж-33 м2
    • 1/2 эт.
    35 000 000 Р
    Агент
    +7 (982) Показать номер
    Посмотреть контакты
    Помещение свободного назначения в Крым, Черноморский район, с. ... - Фото 1
    Помещение свободного назначения в Крым, Черноморский район, с. ... - Фото 2
    Код объекта: 1688041.Здание на первой линии Чёрного моря, обладающее рядом преимуществ:Расположение: Первая линия побережья Чёрного моря обеспечивает прекрасный вид из окон и возможность развития туристического бизнеса.Разрешенное использование земли:...
    • 3/3 эт.
    35 000 000 Р
    Агент
    +7 (989) Показать номер
    Посмотреть контакты
    Помещение свободного назначения в Оренбургская область, Оренбургский ... - Фото 1
    Помещение свободного назначения в Оренбургская область, Оренбургский ... - Фото 2
    Код:450. ЭКСКЛЮЗИВНАЯ УСАДЬБА на берегу Озера (35 км от города Оренбург).Уникальное предложение - закрытая усадьба с прямым выходом на живописную набережную озера Беленовское. Идеально подходит как для круглогодичного корпоративного отдыха, так и для...
    • 1/2 эт.
    36 000 000 Р
    Агент
    +7 (919) Показать номер
    Посмотреть контакты
    Помещение свободного назначения в Пензенская область, Пенза ул. ... - Фото 1
    Помещение свободного назначения в Пензенская область, Пенза ул. ... - Фото 2
    Код объекта: 1590778.Готовый арендный бизнес с действующим федеральным арендатором Самокат . МАП в месяц.Выгодное предложение по покупке коммерческого помещения общей площадью 245,2 кв.м, расположенное по ул. Измайлова, 46 в ЖК Движение, р-он ГПЗ. Помещение...
    • 1/18 эт.
    35 000 000 Р
    Агент
    +7 (908) Показать номер
    Посмотреть контакты
    Помещение свободного назначения в Ростовская область, Ростов-на-Дону ... - Фото 1
    Помещение свободного назначения в Ростовская область, Ростов-на-Дону ... - Фото 2
    Код объекта: 1551139.Коммерческое помещение 218 м • ГАБ • готовый арендный бизнес• В помещении работает федеральный арендатор• Арендный поток — 293 000 / месяц• Долгосрочный договор аренды — до 2029 года• Предусмотрена ежегодная индексация• Формат —...
    • 1/1 эт.
    35 000 000 Р
    Агент
    +7 (989) Показать номер
    Посмотреть контакты

    Не нашли подходящего объявления?

    Оставьте заявку, и наши риэлторы подберут псн в районе Сургута

    (0)